66 Blue Spruce, Humboldt Hill
.25 Acre Lot 23
$379,500
2476 Cherry

Living Room

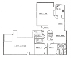
Soon to be built! This custom, 3 bedroom, 2 bath, 1,662 sq. ft. home will offer a vaulted great room, open to the kitchen and dining area. The Master has a walk-in closet and private bathroom, and all rooms have at least a 9ft. ceiling. It also features a triple garage! There are allowances offered for lighting, flooring & appliances.
Note: The photos shown are of a recently completed home that this will be “similar to”.
Call for a flyer with a complete list of features for this quality, custom home.

Dining Room

Kitchen

Hardware Floors

Master Bath

Office Patio
RV Parking